English
Loading...

LS-YP-11.7FT-3IN-C
 
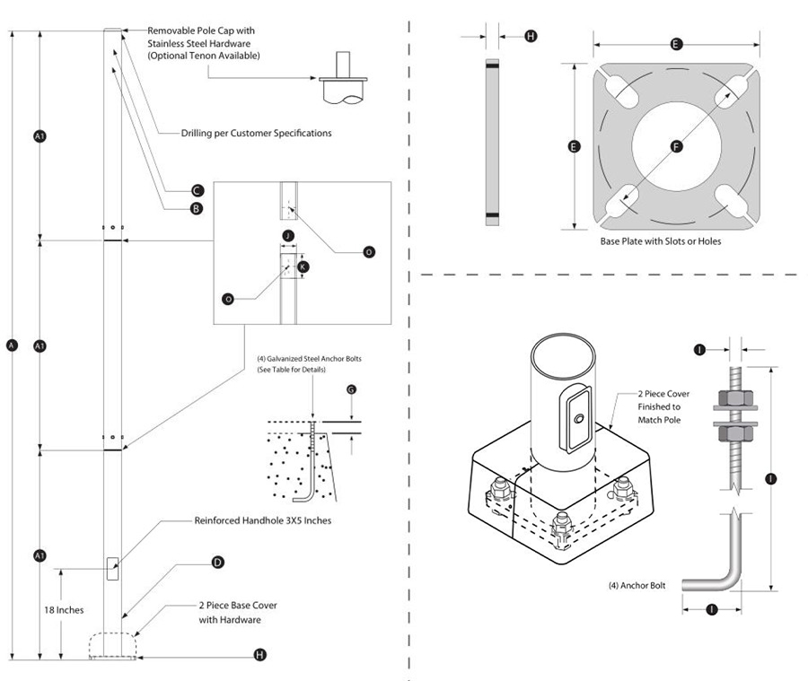
●Pole Top Options:
A removable aluminum pole cap is provided if the pole is drilled for attaching light fixtures. The drill pattern and drill orientation needs to be provided by the customer unless Energy Light fixtures are used for the project. If a tenon option is selected, a steel tenon will be provided. A 23/8 inch diameter tenon with a 4 inch length is standard; however, the customer needs to confirm the appropriate tenon size required for the project.
●Pole Shaft:
Commercial quality welded steel tubing of 3 piece A1 length construction with a minimum yield strength of 55,000 psi is used to fabricate the pole shaft and hold the connection position with screws.
●Handhole:
3 X 5 inches tall reinforced handhole is provided at 18 inches from the base. A cover with a single screw to secure the latch mechanism is also provided.
●Base Cover:
A 2 piece metal base cover is provided along with hardware to securely attach the 2 pieces together after pole installation.
●Anchor Bolts:
A set of 4 galvanized steel anchor bolts is provided with each pole assembly. Each bolt includes 2 nuts and 2 washers. A portion of the anchor bolt is threaded for securing and leveling the pole with the provided nuts and washers. An actual size paper anchor bolt template is included.
●Color:
Dark Bronze ( other color optional)
Copyright © 2019 宁波莱索照明电器有限公司 版权所有 《中华人民共和国电信与信息服务业务经营许可证》编号: 浙ICP备15025569号-1 浙公网安备 33022602000675号
客服中心
工作时间

周一至周日

8:00 - 18:00

点击这里给我发消息 销售客服


请直接QQ联系!
展开客服